敷地を生かすエクステリアプラン
ガーデンファクトリー代表の山本です、ブログをご訪問いただきありがとうございます。
今日は先月完成したO様のお宅の外構工事のご紹介となりますが、角地にあり、敷地の形状も長方形ではなく台形、という敷地でしたので・・・・案外プランに悩む敷地形状でした。
まず着工前はこんな感じでしたが、南側の駐車スペースを含め西側にも微妙な広さのスペースがありました。
(南側)

(西側) 駐車スペースにはなりませんが微妙なスペースです。

エクステリアプランニングの際はまず駐車場が優先となり、そしてアプローチ、で残ったスペースにようやく【庭】という感じですが、なかなか50坪の敷地スペースに車2台駐車して・・・・庭が作れるスペースは残りません。
ただこういう変形した敷地にはどこかに必ず【無駄なスペース】や【使えないスペース】がありますので、そんな部分をなるべく有効に活用することを心がけてます。
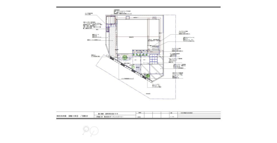
そんなわけでお客様のご要望も踏まえこんな感じのプランになりました。

駐車場2台は必須事項でしたがやはりアプローチや小さくても庭やデッキもほしいとのことでした。
またお子さんたちのための駐輪場と奥様は家庭菜園にコンポストなども・・・・・・できればほしいと
ご要望がたくさんです(笑)
そしてこういう敷地の制約がある中でいろいろ盛り込んだプランを悩みながら作っていると・・・・毎回何か【難しくて楽しいパズル】をやっている感覚になりますが、考えた分だけお客様のその後の生活も楽しくなるわけですし、
またこの難しいプランづくりと気を抜けない細かな見積業務も今となっては自分のボケ防止にもかなり効果があるんじゃないかと思います(笑)
というわけでこんな感じに出来上がりました。
まだ完了清掃時の画像ですが駐車スペースも2台取り、平面的ですが敷き材で変化をつけました。
また道路や前面の公園からの視線を遮るため、土留めを兼ねた化粧ブロックの基礎にウッドフェンスを製作しました。

奥に土を入替えて小さな庭スペースを作りましたが真夏の完成のため秋になって芝を貼りました。

小さなデッキも場所に合わせて製作しました。

西側の微妙な広さのスペースには駐輪場やミニ菜園とコンポストを製作しました。

スペースに合わせて作った駐輪場です。
コンポストもかなりの容量があるので生ゴミの処理もはかどるのではと思います。

そんなわけで敷地を存分に使ってご要望をかなえましたので・・・O様には大変喜んでいただけました。
とにかくみなさんせっかく思い切って我が家を建てたのだから・・・・こんな感じのまま生活するのはやはりもったいないかと思います。

家作りの最後でもうひとがんばりしてください!

★よろしければこちらもお読みください
・敷地面積50坪前後の庭と外構について(長野市ガーデンファクトリー)
・・・・・・・・・・・・
ほかの施工例はこちらからどうぞ!
緑の比率が高く緑に包まれるガーデン&エクステリアをぜひご覧ください。
ブログ記事一覧はこちら







